VOLNÝ

Dům 02

Dispozice

4+kk

Plocha

117 m²

Pozemek

415 m²

Cena

10 405 525 Kč

Prostorný rodinný dům s moderním designem a velkou zahradou. Dům nabízí otevřený obývací prostor s kuchyní, 3 ložnice a 2 koupelny.

Rodinný dům představuje ideální kompromis mezi bungalovem a patrovým domem. Jeho přednosti jsou zejména jednoduchý obdélníkový tvar a tradiční sedlová střecha, díky kterým skvěle zapadne jak do nové, tak starší zástavby. Dům poskytne komfortní, a především úsporné bydlení až čtyřčlenné rodině. Jeho dispozice byla navržena tak, aby vyhovovaly všem členům domácnosti a poskytovaly jim dostatek prostoru.

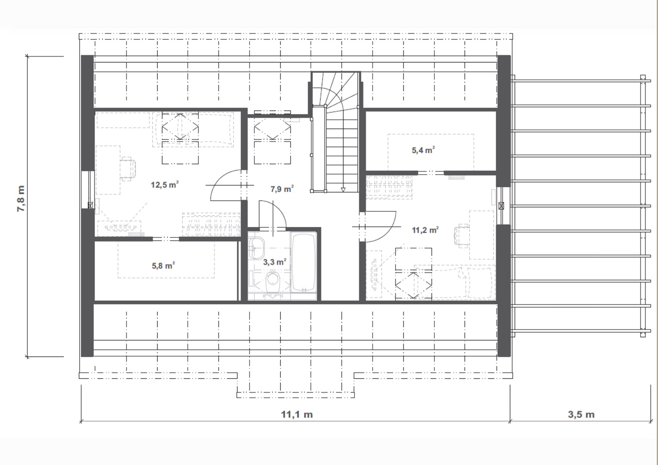
Přízemí je prosvětlené velkými okny, která vedou rovnou na terasu a propojí tak Váš domov se zahradou. Podkroví o ploše 47 m2 nabízí útulné, klidné pokoje, kde si každý člen domácnosti najde chvilku pro sebe. Samozřejmě nechybí ani dostatek úložného prostoru.

Máte zájem o tento dům?

Kontaktujte nás

Nabízíme bezplatnou konzultaci a prohlídku vzorového domu. Stačí se ozvat a domluvíme termín, který vám vyhovuje.

Telefon

+420 774 080 080

Email

info@hermanickydvur.cz

Adresa

Nad Vodárnou 679/9,
713 00 Ostrava - Heřmanice